Berechnung nach WoFlV
Die Flächenberechnung nach WoFlV ist die Grundlage für Ihre Finanzierungsanfrage oder Ihren Bauantrag. Wir berechnen Ihre Wohnfläche auf Basis Ihrer Planvorlage und stellen Ihnen zusätzlich ein Zertifikat aus.
1. Angaben zum Wohngebäude
Gebäudetyp auswählen
Wählen Sie den passenden Gebäudetyp für Ihre WoFlV-Berechnung
* Die Preise gelten für Wohnungen oder Etagen mit bis zu ca. 120m² BGF (Bruttogeschossfläche = Fläche inkl. Wand- und Terrassen-/Balkonflächen). Bei größeren Grundrissen erhalten Sie von uns gegebenenfalls ein Angebot und können entscheiden, ob wir den Auftrag bearbeiten oder stornieren sollen.
Dateien hochladen
Laden Sie hier Ihre Dateien hoch (PDF, JPG, PNG, DOC):
Was soll hochgeladen werden?
+Wohnflächenberechnung WoFlV / DIN 277
BENÖTIGTE UNTERLAGEN / ANGABEN / HINWEISE
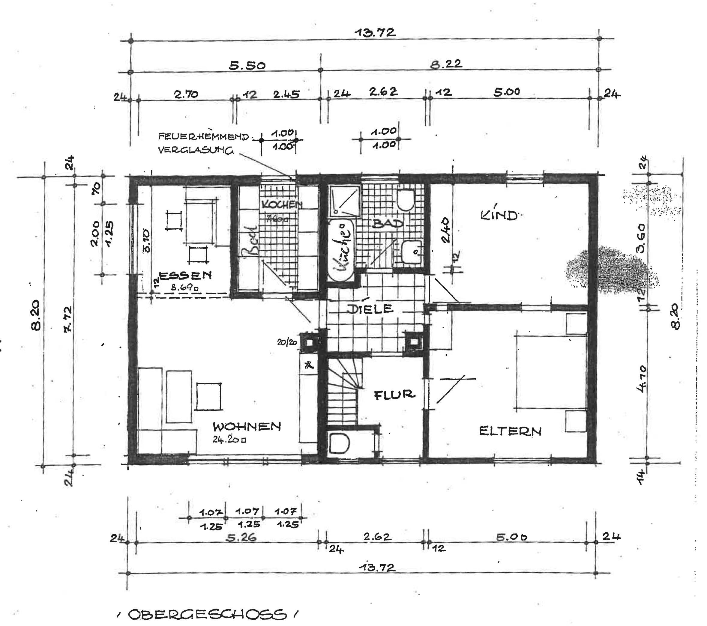
- Vorlagen können alte Bestandspläne oder Handskizzen sein. Bitte stellen Sie sicher, dass die Grundrisse dem Ist-Zustand entsprechen und zeichnen Sie ggf. Änderungen direkt in Ihre Vorlage. Bitte achten Sie darauf, dass die übermittelten Grundrisse nicht verzerrt oder schief sind, da ansonsten Fehler aufkommen können.
- Für die Flächenberechnung ohne Vermessung benötigen wir einige Referenzmaße auf Ihrer Vorlage – nicht nur die Quadratmeterangabe. Andernfalls können wir uns nur anhand vermutlich fester Bezugsgrößen wie Türbreiten orientieren (Standardmaß 88,5cm), wodurch die Flächenberechnung ungenau ist. Bei Handskizzen mit selbst ermittelten Maßen prüfen Sie diese vorab (Teil- und Gesamtmaße innerhalb einer Etage und zwischen den Etagen prüfen).
- Achten Sie darauf, dass die Fenstermaße angegeben sind, damit wir berechnen können, ob der Raum als Wohnfläche zählt oder nicht.
- Bitte teilen Sie uns für das Bauteil Treppe drei wesentliche Angaben mit: Laufrichtung (z.B. von Erdgeschoss ins Obergeschoss), Breite der Treppe, Länge der Treppe
- Bei Objekten mit Dachschrägen benötigen wir die Angaben zur 1-Meter und zur 2-Meter-Linie (siehe Abbildung).
- Zur Berechnung der Kubatur benötigen wir die Raumhöhen und die Dachform. Im besten Fall über einen Gebäudeschnitt oder eine aussagekräftige Skizze.
Beispielbilder und Erläuterungen


Maximale Dateigröße: 10 MB pro Datei
Hochgeladene Dateien:
Zusammenfassung
Ihre Auswahl:
Hochgeladene Dateien:
Gesamtpreis:
Beschreibung
Wohnflächenberechnung – normgerecht, exakt & anerkannt
Eine korrekte Wohnflächenberechnung ist die Grundlage für Finanzierung, Verkauf, Vermietung oder Abrechnung. Mit IMMOLAB24 erhalten Sie eine transparente, nachvollziehbare Flächenaufstellung – erstellt nach geltender Norm und als offizielles Dokument zur Vorlage bei Banken, Behörden oder Käufern.
Unsere Leistung im Überblick:
- Exakte Berechnung nach WoFlV oder DIN 277
- Auswertung auf Basis Ihrer Pläne oder Skizzen
- Klar gegliedertes Ergebnisdokument als PDF
- Mit optionaler Flächenaufschlüsselung pro Raum
Für wen eignet sich der Service?
- Eigentümer & Makler, die fundierte Angaben für Exposés oder Verkaufsunterlagen benötigen
- Käufer & Investoren, die Flächen vor Vertragsabschluss prüfen lassen möchten
- Verwalter & Vermieter, die Abrechnungen rechtssicher erstellen müssen
- Finanzierungsberater, die eine sichere und schnelle Kreditvergabe erzielen wollen



